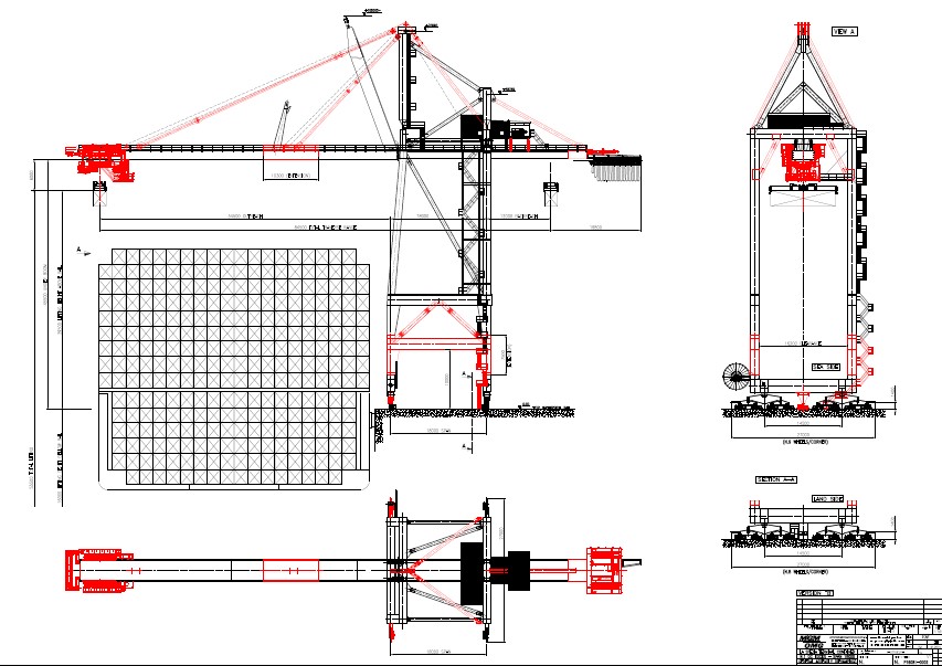
Il La Spezia Container Terminal (LSCT) è lieto di confermare a tutti i suoi clienti che – con il ritorno in servizio sulla banchina Fornelli Ovest della rinnovata gru Nr. 6 (in precedenza Nr.1), ora capace di operare su navi da 20 file di contenitori – è stata completata l’ultima fase del programma di ammodernamento delle gru di banchina.
Con questi ultimi spostamenti si conclude così un lungo progetto, inziato nel 2010: in meno di 5 anni sette sono le gru che hanno intrapreso il programma di revamping, senza dimenticare l’arrivo dalla Cina, nel primo quarto di quest’anno, di due nuove gru da 23 file. L’investimento complessivo per il rinnovamento dell’equipment è stato considerevole, con più di 23 milioni di Euro spesi per far fronte al crescente numero di navi più grandi impiegate dai clienti nei vari network, e quindi garantire loro un servizio adeguato.
Ad oggi, la disposizione del terminal è così definita: la banchina Fornelli Est è equipaggiata con cinque gru, due da 23 file e tre da 20 file. Sul lato opposto, la banchina Fornelli Ovest è dotata di sei gru, quattro da 20 file e due da 18. Complessivamente, sono undici le gru a disposizione dei clienti che utilizzano il terminal.
Paolo Mussi – direttore del dipartimento tecnico di LSCT – è stato intervistato mentre osservava le ultime operazioni di riposizionamento “...Se mi guardo indietro, come succede per ogni sfida ingegneristica, ripenso a tutta una serie di difficoltà che abbiamo dovuto superare, legate a vari aspetti tecnici come il trasporto, il flusso operativo del terminal, e molti altri. Tutte le problematiche sono state risolte brillantemente, con tutti i dipartimenti e nostri fornitori che hanno collaborato in sinergia con l’obiettivo di non mettere a repentaglio il fattore più importante – il servizio ai clienti. Ora il pacchetto di gru è completo, operativo al 100%, con le nuove ship to shore affiancate alle ‘redivive’ gru revampate.
Entrambe le banchine del Fornelli sono capaci di operare simultaneamente una nave della classe ULCC da 14.000 TEU – caratteristica che rende La Spezia unico nel panorama dei porti gateway italiani – e con la banchina Est attrezzata per far fronte anche ad operazioni su navi con capacità superiore ai 16.000 TEU.












