20 July 2016

Terminal Container Ravenna (TCR) – “Un’estate di investimenti”

With final preparations for the on-site assembly of three new Rail Mounted Gantry cranes, further boosting yard efficiencies, now being made, TCR Management continues to be active during the summer period, having now inked a contract for the purchase of a brand new Ship-to-Shore crane.

 

Due for delivery during the latter part of 2017, the new addition will supplement existing quayside equipment, two of which were upgraded as recently as 2014 and 2013, respectively.    

 

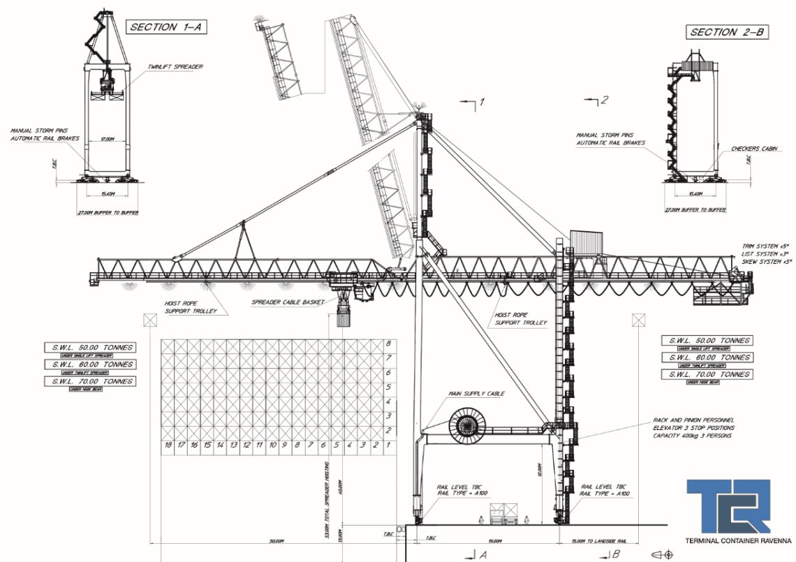
The principle dimensions are:

  • Outreach : 50 m
  • Span: 19 m
  • Useful back reach: 15 m
  • Lifting height above quay: 40 m
  • Capacity : 60 tons under spreader

 

Having personally signed the contract, Milena Fico, Director and General Manager of Terminal Container Ravenna enthuses: “This latest tranche of investment brings the total to some twenty-five million euros since 2013, in quayside cranes, yard equipment, hardware, software, firm evidence of the commitment of the shareholders to Ravenna.  The market is very positive about TCR’s customized approach to personal service and flexibility and the new investment both in yard and ship-to-shore crane equipment can only enhance this further for the longer term.”

Romano Magnani, Technical Safety & Security Manager adds “Like all new products, the specifications provide for the latest available technology, with many advanced features even compared to our 2014 model. Naturally, the new crane comes with the excellent environmentally friendly enhancements, fit for a 21st century industry, something that was high up on the list of priorities during the selection process.”

Similar articles

  • Business news
    28 March 2017

    Al TCR Ravenna proseguono i piani di investimento: operative le tre nuove gru RMG

  • TCR new RMG cranes
    Business news
    8 February 2017

    TCR: ultimati i lavori di assemblaggio delle tre nuove gru di piazzale RMG

  • New RMG TCR
    Business news
    18 October 2016

    Investimenti – Le gru RMG arrivano al Terminal Container Ravenna